
3-ZIMMER ERDGESCHOSS-WOHNUNG MIT TERRASSE IN HAMBURG – VOLKSDORF
Weitere Details
Das Mehrfamilienhaus umfasst fünf Wohnungen und wurde im Jahr 1997 erbaut. Es befindet sich in einem sehr gepflegten Zustand.
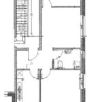
Die 3-Zimmer-Wohnung liegt im Erdgeschoss und ist barrierefrei zugänglich.
Hamburg-Volksdorf, vielfältige Angebote in idyllischer Umgebung machen den Ort zu einem beliebten Stadtteil. Als Zentrum der Walddörfer wird die Bebauung dieser Region durch gepflegte Einfamilienhäuser auf großen Grundstücken sowie eleganten Villen geprägt.
Diese beliebte Lage verbindet hervorragende Infrastruktur mit hoher Lebensqualität.
Ein umfangreiches Einkaufs- und Freizeitangebot wird unter anderem durch das im Ort liegende Kino, das Schwimmbad, dem bekannten Wochenmarkt sowie durch die Läden im gemütlichen Ortskern gewährleistet. Auch das Einkaufzentrum AEZ ist mit dem Auto nur in wenigen Minuten zu erreichen.
Mit der U-Bahn der Linie 1 erreichen Sie den Hamburger Hauptbahnhof in 29 Minuten.
Alle Zimmer sowie Bad und Küche sind vom Flur aus begehbar.
Das Wohn- und Schlafzimmer sowie der Flur sind mit Parkettboden ausgestattet, das Bad und die Küche sind weiß gefliest. Vom Wohnzimmer aus gelangen Sie auf die großzügige Terrasse (Südseite). Von hier aus haben Sie einen traumhaften Blick in den gepflegten Garten.
Das helle Bad verfügt über ein Fenster und ist mit einer Dusche ausgestattet.
Eine neue Einbauküche wurde eingebaut, zudem wurden sämtliche Renovierungsarbeiten durchgeführt.
Zur Wohnung gehört ein eigener Kellerabstellraum mit ca. 12 m².
Im allgemeinen Keller befindet sich ein Raum, in dem Ihre Waschmaschine untergebracht werden kann. Hier haben Sie ebenfalls die Möglichkeit, einen eigenen Trockner aufzustellen. Wäscheleinen für die Allgemeinheit stehen zusätzlich zur Verfügung.
Ebenfalls gehört zur Wohnung ein Außenstellplatz für zzgl. 50,00 EUR monatlich.
Geschäftsbedingungen:
Mit dieser Offerte bieten wir Ihnen das bezeichnete Objekt und zugleich unsere Dienste als Makler an. Bei aller Sorgfalt können wir keine Gewähr dafür übernehmen, dass alle Angaben richtig sind und das Objekt im Augenblick des Zugangs dieser Offerte noch verfügbar ist. Der Inhalt ist vertraulich und ausschließlich für den adressierten Empfänger bestimmt. Bei Weitergabe an Dritte ohne unsere Zustimmung ist der Empfänger unserer Nachweis-/Vermittlungstätigkeit zur Zahlung der vereinbarten Provision verpflichtet, wenn der Dritte das Geschäft, ohne mit uns einen Maklervertrag vereinbart zu haben, abschließt. Der Maklervertrag mit uns oder unseren Beauftragten kommt entweder durch schriftliche Vereinbarung oder auch durch die Inanspruchnahme unserer Maklertätigkeit auf der Basis etwa des Objekt-Exposés und seiner Bedingungen oder von uns erteilter Auskünfte zustande. Der Maklervertrag kommt auch zustande, wenn Sie von diesem Angebot Gebrauch machen und sich mit dem Verkäufer / Vermieter direkt in Verbindung setzen. Die Courtage zahlt die betreffende Partei (Käufer, Verkäufer, Mieter oder Vermieter) nur, wenn ein Vertrag über das angebotene Objekt zustande kommt, selbst, wenn wir bei dem Vertragsabschluß nicht mitwirken. Sie sind damit einverstanden, dass wir auch für Ihren Vertragspartner tätig sind. Irrtum und Zwischenverkauf/-vermietung vorbehalten!












