
ATTRAKTIVES BAUGRUNDSTÜCK IN RÜCKWÄRTIGER LAGE MIT BAUBINDUNG / PLANUNG FÜR NEUBAU
Weitere Details
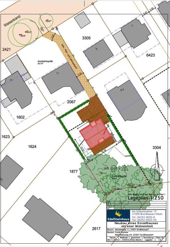
Es handelt sich um ein Baugrundstück von ca. 765 m² in rückwärtiger Lage mit einer Baubindung der EdelSteinhaus GmbH.
Die Erschließung dieses Grundstücks erfolgt über eine gemeinsame, fast mittige Einfahrt mit dem vorderen Grundstück. Das Grundstück Nr. 1 gewährt dem Grundstück Nr. 2 durch ein nord-östlich gelegenes Geh-, Fahr- und Leitungsrecht die Zufahrt zum Grundstück Nr. 2. Die Kosten und Lasten dieser gemeinsamen Zufahrt teilen sich die beiden Grundstücke je zur Hälfte. Das gilt für die Herstellung der Zufahrt und für die Unterhaltung.
Das Grundstück liegt im Geltungsbereich des Bebauungsplans Nr. 6 bzw. B 6.1 der Gemeinde Großhansdorf.
Das angebotene Grundstück befindet sich in Schmalenbeck/Großhansdorf.
Die Waldgemeinde liegt in einer der reizvollsten Landschaften des Kreises Stormarn in Schleswig-Holstein und stellt eine sehr beliebte Wohngemeinde am Rande Hamburgs dar.
Fußläufig erreichen Sie das Ortszentrum von Schmalenbek. Die Grundschule und diverse Kindergärten finden Sie hier ebenfalls fußläufig. Alle weiterführenden Schularten sind per Bus oder Rad zu erreichen.
Die U-Bahn Linie 1 ist nur 230 m entfernt und bringt Sie in 30 Minuten in die Innenstadt von Hamburg.
Der Ort bietet sämtliche Einkaufsmöglichkeiten des täglichen Bedarfs, nette Restaurants sowie alle Fachärzte. Zweimal wöchentlich haben Sie sogar die Gelegenheit auf den beliebten Wochenmärkten frische Ware einzukaufen.
Des weiteren besteht eine optimale Verkehrsanbindung an die Autobahn A1 (5 Fahrminuten), an die B75 (2 Fahrminuten) und an den Ahrensburger Bahnhof.
Es liegt eine aktuelle Angebotsplanung der EdelSteinhaus GmbH vor:
Es handelt sich um ein modernes 1-Familienhaus mit einer offenen, modernen Grundrissgestaltung und einem Eingangsbereich mit offener Galerie.
Das Haus kann und sollte den individuellen Wünschen der Bauherren angepasst werden.
Die Wohn-und Nutzfläche beträgt ca. 156 m², die reine Wohnfläche ca. 141 m². Der energetische Standard ist KfW 40 mit Luftwärmepumpe und zentraler Lüftungsanlage mit Wärmerückgewinnung.
– Folierte Kunststofffenster von aussen in anthrazit
– Eine offene massive Buchenholzwangentreppe
– Elektrische Rollläden in Aluminium in den Wohn- und Schlafräumen
Planungsleistungen:
Vorplanung, Bauantrag, Entwässerungsantrag, Ausführungsplanung, energetischer Nachweis, Statik.
Optional/Mehrleistungen möglich:
– Photovoltaikanlage mit ca. 9kwP ohne Batteriespeicher ca + EUR 13.000.
Hauspreis ca. EUR 440.000 inkl. MwSt. zzgl. geschätzte Baunebenkosten EUR 140.000
Das Haus beinhaltet keine:
– Küche, Möbel, freistehende Badewanne, Doppelwaschtisch/Badmöbel, Gartengestaltung/Erdarbeiten/Aussenanlagen, Zäune etc.
– Die Visualisierung enthält Sonderausstattungen und sind als Anregungen zu verstehen (z.B. eckige Dachrinnen, Skyframefenster über Eck, Vordach, Briefkasten)
Die Angebotsplanung kann bei Interesse angefordert werden.
Geschäftsbedingungen:
Mit dieser Offerte bieten wir Ihnen das bezeichnete Objekt und zugleich unsere Dienste als Makler an. Bei aller Sorgfalt können wir keine Gewähr dafür übernehmen, dass alle Angaben richtig sind und das Objekt im Augenblick des Zugangs dieser Offerte noch verfügbar ist. Der Inhalt ist vertraulich und ausschließlich für den adressierten Empfänger bestimmt. Bei Weitergabe an Dritte ohne unsere Zustimmung ist der Empfänger unserer Nachweis-/Vermittlungstätigkeit zur Zahlung der vereinbarten Provision verpflichtet, wenn der Dritte das Geschäft, ohne mit uns einen Maklervertrag vereinbart zu haben, abschließt. Der Maklervertrag mit uns oder unseren Beauftragten kommt entweder durch schriftliche Vereinbarung oder auch durch die Inanspruchnahme unserer Maklertätigkeit auf der Basis etwa des Objekt-Exposés und seiner Bedingungen oder von uns erteilter Auskünfte zustande. Der Maklervertrag kommt auch zustande, wenn Sie von diesem Angebot Gebrauch machen und sich mit dem Verkäufer / Vermieter direkt in Verbindung setzen. Die Courtage zahlt die betreffende Partei (Käufer, Verkäufer, Mieter oder Vermieter) nur, wenn ein Vertrag über das angebotene Objekt zustande kommt, selbst, wenn wir bei dem Vertragsabschluß nicht mitwirken. Sie sind damit einverstanden, dass wir auch für Ihren Vertragspartner tätig sind. Irrtum und Zwischenverkauf/-vermietung vorbehalten!









