
EINFAMILIENHAUS MIT POTENZIAL ZUM WACHSEN – ZENTRAL IN BARGTEHEIDE
Weitere Details
Es handelt sich um ein Einfamilienhaus von 1959 mit ca. 82 m² Wohnfläche im EG und ca. 70 m² Nutzfläche im Keller mit Tiefgarage und Flächen im Dachboden.
Um das Haus herum liegt ein wunderschöner, großer Garten, in dem viel Gestaltungsmöglichkeiten gegeben sind. Die Erschließung des Hauses 32 erfolgt über ein Geh-, Fahr- und Leitungsrecht über das Flurstück 109/2, das im Eigentum des Hauses 34 liegt.
Das Grundstück liegt im Zentrum von Bargteheide im Kreis Stormarn. Der Bahnhof der Regionalbahn ist in 5 Minuten zu Fuß erreichbar. Die Haupteinkaufsstraße und der Marktplatz befinden sich fast vor der Tür. Hier haben Sie ein reichhaltiges Angebot an Supermärkten, Banken, Boutiquen, Parfümerien und Restaurants.
Ein großes Schulzentrum von der Grundschule über die Gesamtschule bis zum Gymnasium und einer Waldorfschule, sowie auch Kindergärten befinden sich in Bargteheide. Bargteheide hat ein schönes Freibad und ein reichhaltiges Sportangebot. Die Ostsee ist in ca. 30 Minuten über die A1 erreichbar.
Das Objekt wurde 1959 erbaut und wurde in den letzten Jahren in kleinen Schritten immer mal wieder renoviert.
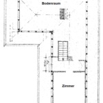
Das Erdgeschoß verfügt über ein Elternschlafzimmer, zwei Kinderzimmer, sowie ein Badezimmer und die Küche.
Aus dem Erdgeschoß führt eine Treppe in den Keller mit der Tiefgarage. Im Keller weisen die Wände an der Nord-Ost Seite Feuchtigkeitsschäden auf.
Über die Treppe in das Dachgeschoß erreichen Sie ein weiteres Schlafzimmer. Ebenfalls befinden sich auf dieser Ebene noch zwei weitere Bodenräume und ein WC.
Alle Fenster im Erdgeschoß verfügen über Rollläden.
Auf dem Grundstück der Hausnummer 32 befindet sich ein Schacht mit einer Hebeanlage, die für das Abführen des Schmutzwassers des Hauses 34 durch das Abwassersystem des Hauses 32 verantwortlich ist. Diese Hebeanlage wird durch den Eigentümer des Hauses 34 gewartet und instandgehalten. Für dieses Recht ist eine Baulast im Baulastenverzeichnis eingetragen.
Geschäftsbedingungen:
Mit dieser Offerte bieten wir Ihnen das bezeichnete Objekt und zugleich unsere Dienste als Makler an. Bei aller Sorgfalt können wir keine Gewähr dafür übernehmen, dass alle Angaben richtig sind und das Objekt im Augenblick des Zugangs dieser Offerte noch verfügbar ist. Der Inhalt ist vertraulich und ausschließlich für den adressierten Empfänger bestimmt. Bei Weitergabe an Dritte ohne unsere Zustimmung ist der Empfänger unserer Nachweis-/Vermittlungstätigkeit zur Zahlung der vereinbarten Provision verpflichtet, wenn der Dritte das Geschäft, ohne mit uns einen Maklervertrag vereinbart zu haben, abschließt. Der Maklervertrag mit uns oder unseren Beauftragten kommt entweder durch schriftliche Vereinbarung oder auch durch die Inanspruchnahme unserer Maklertätigkeit auf der Basis etwa des Objekt-Exposés und seiner Bedingungen oder von uns erteilter Auskünfte zustande. Der Maklervertrag kommt auch zustande, wenn Sie von diesem Angebot Gebrauch machen und sich mit dem Verkäufer / Vermieter direkt in Verbindung setzen. Die Courtage zahlt die betreffende Partei (Käufer, Verkäufer, Mieter oder Vermieter) nur, wenn ein Vertrag über das angebotene Objekt zustande kommt, selbst, wenn wir bei dem Vertragsabschluß nicht mitwirken. Sie sind damit einverstanden, dass wir auch für Ihren Vertragspartner tätig sind. Irrtum und Zwischenverkauf/-vermietung vorbehalten!












