
KUSCHELIGE DACHGESCHOSSWOHNUNG IN AHRENSBURG
Weitere Details
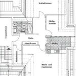
Die ca. 81,85 m² große 3-Zimmer-Wohnung befindet sich im Obergeschoss/Dachgeschoss eines sehr gepflegten Mehrfamilienhauses aus dem Jahr 1995 in ruhiger Wohnlage von Ahrensburg, Ortsteil Hagen.
Die angebotene Wohnung befindet sich in östlicher Lage der Schlossstadt Ahrensburg.
Es handelt sich um eine gewachsene sowie ruhige Wohnlage. Die Nachbarbebauung ist geprägt von Einfamilien- und Doppelhäusern.
Am Ende des Pionierweges befindet sich eine Bushaltestelle, welche Sie in wenigen Minuten fußläufig erreichen. Durch zahlreiche Busverbindungen können Sie leicht Ziele im Ort und in der Umgebung erreichen. Die Anbindung nach Hamburg und Lübeck runden zwei U-Bahnhöfe sowie die Regionalbahn ab.
Ahrensburg bietet für den täglichen Bedarf sämtliche Möglichkeiten zum Einkaufen durch zahlreiche Supermärkte, einem Einkaufszentrum, einem Warenkaufhaus und diversen Einzelhandels- und Fachgeschäften. Zusätzlich verfügt die Stadt über ein umfangreiches Freizeitangebot, wie zum Beispiel Tennis, Hockey, Fußball und Schwimmen.
Schulen und Kindergärten sind ebenfalls in einer Vielzahl vorhanden.
Der Flur bietet durch seinen vorteilhaften Schnitt ausreichend Platz für eine Garderobe. Sämtliche Räume sind bequem von der Diele aus zugänglich.
Das großzügig geschnittene Wohn- und Esszimmer verfügt über einen direkten Zugang zum südlich ausgerichteten Balkon, der zum Entspannen einlädt.
Angrenzend an den Wohn- und Essbereich befindet sich die hell geflieste Küche.
Hier wird eine neue Einbauküche eingebaut, bestehend aus einem Herd mit Backofen sowie einer Dunstabzugshaube. Ein Kühlschrank ist nicht vorhanden. Die Geschirrspülmaschine der Vormieterin kann bei Bedarf übernommen werden. Zudem besteht ausreichend Platz für einen Esstisch.
Das größere Schlafzimmer ist mit einem großen Fenster ausgestattet, das für eine helle und freundliche Atmosphäre sorgt.
In sämtlichen Wohn- und Schlafräumen sowie im Flur ist ein heller Laminatboden verlegt.
Das Badezimmer ist mit einer Badewanne inklusive Duschwand, weißen Fliesen sowie einem Fenster ausgestattet. Zudem wird hier ein neues Waschbecken eingebaut. Der Anschluss für eine Waschmaschine ist ebenfalls vorhanden.
Ein Abstellraum sowie ein Dachboden bieten zusätzlichen Stauraum. Die die Wohnung wird frisch gestrichen und die Innentüren werden erneuert bzw. ausgetauscht.
Zur Wohnung gehört ein Stellplatz auf dem Grundstück für zzgl. 30,00 EUR monatlich. Außerdem können der Garten, das Gartenhaus sowie der Fahrradraum gemeinschaftlich genutzt werden.
Zu den angegebenen Nebenkosten schließt der Mieter direkte Verträge mit den Versorgern für Wasser, Strom, Gas und Kabelfernsehen ab. Diese Kosten sind nicht in den Nebenkosten enthalten.
Geschäftsbedingungen:
Mit dieser Offerte bieten wir Ihnen das bezeichnete Objekt und zugleich unsere Dienste als Makler an. Bei aller Sorgfalt können wir keine Gewähr dafür übernehmen, dass alle Angaben richtig sind und das Objekt im Augenblick des Zugangs dieser Offerte noch verfügbar ist. Der Inhalt ist vertraulich und ausschließlich für den adressierten Empfänger bestimmt. Bei Weitergabe an Dritte ohne unsere Zustimmung ist der Empfänger unserer Nachweis-/Vermittlungstätigkeit zur Zahlung der vereinbarten Provision verpflichtet, wenn der Dritte das Geschäft, ohne mit uns einen Maklervertrag vereinbart zu haben, abschließt. Der Maklervertrag mit uns oder unseren Beauftragten kommt entweder durch schriftliche Vereinbarung oder auch durch die Inanspruchnahme unserer Maklertätigkeit auf der Basis etwa des Objekt-Exposés und seiner Bedingungen oder von uns erteilter Auskünfte zustande. Der Maklervertrag kommt auch zustande, wenn Sie von diesem Angebot Gebrauch machen und sich mit dem Verkäufer / Vermieter direkt in Verbindung setzen. Die Courtage zahlt die betreffende Partei (Käufer, Verkäufer, Mieter oder Vermieter) nur, wenn ein Vertrag über das angebotene Objekt zustande kommt, selbst, wenn wir bei dem Vertragsabschluß nicht mitwirken. Sie sind damit einverstanden, dass wir auch für Ihren Vertragspartner tätig sind. Irrtum und Zwischenverkauf/-vermietung vorbehalten!












